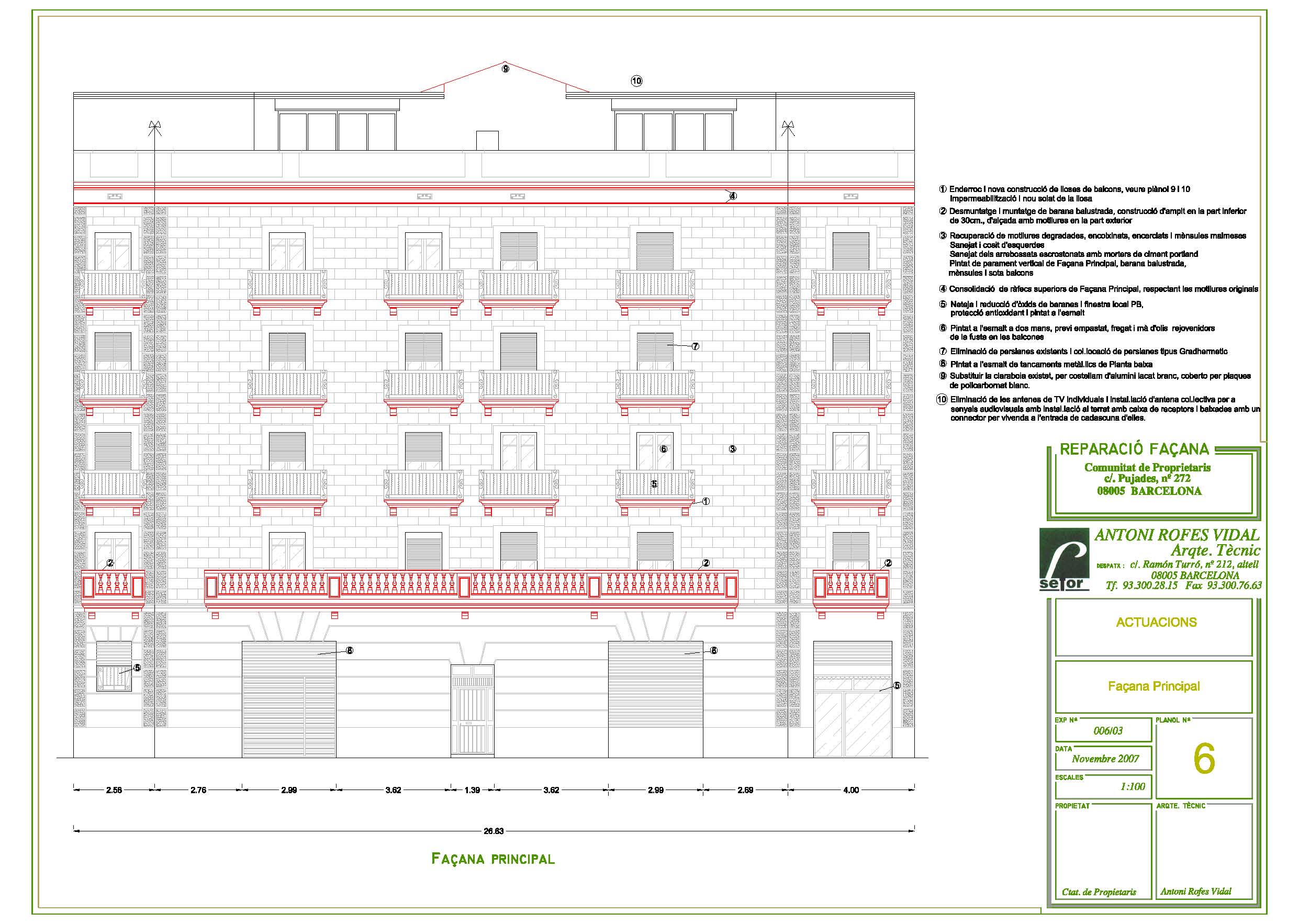
Carrer de Pujades, 272

Pròximament descripció detallada dels treballs executats.

Plànols
Obres
Abans - Després
Obra finalitzada
Plànols
Obres
Abans - Després
Obra finalitzada
Ir al contenido