Plaça de les Olles,2

Pròximament descripció detallada dels treballs executats.

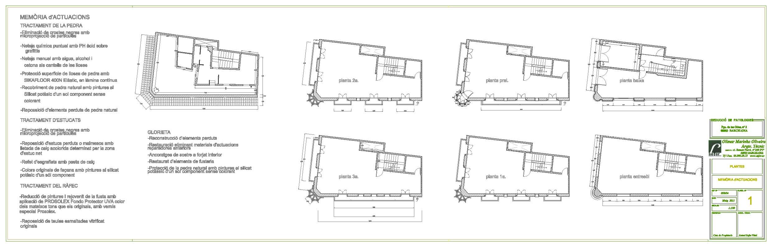
Plànols
Obres
Abans - Després
Obra finalitzada
Plànols
Obres
Abans - Després
Obra finalitzada
Ir al contenido